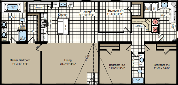
Homes | CSD3264K