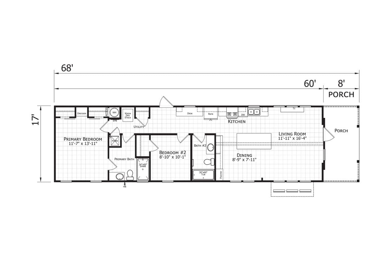
Homes | Champion D1868B | Oklahoma City, OK