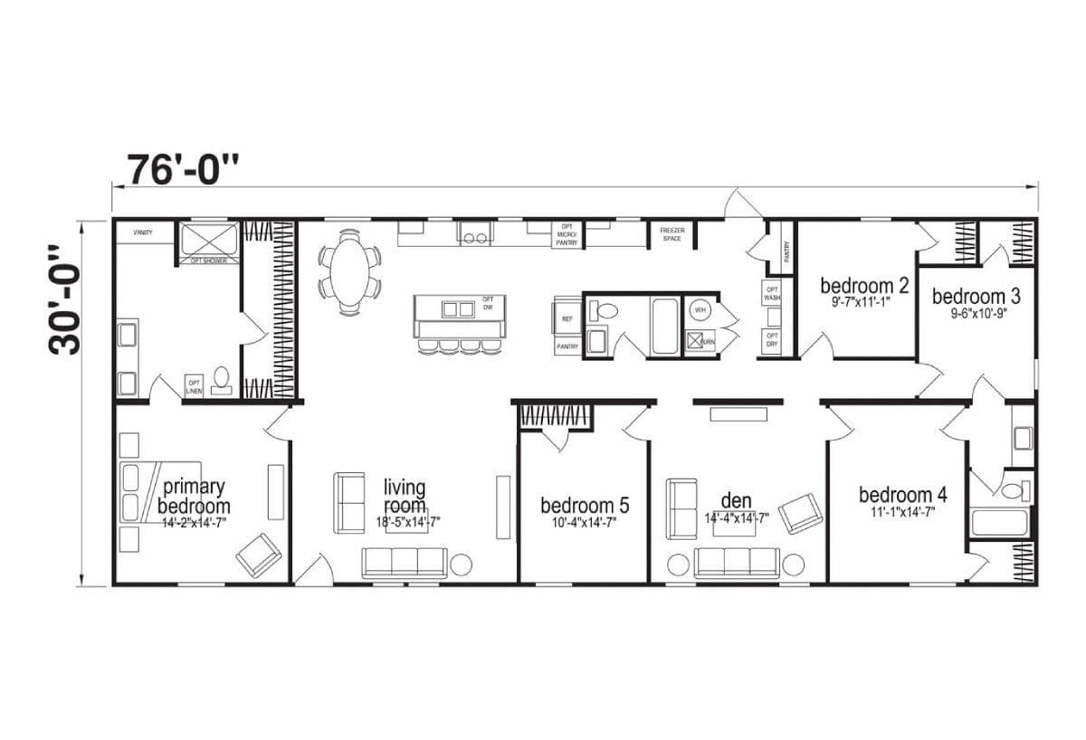
Homes | Skyline Embrace 3276 | Oklahoma City, OK